Продажа помещения свободного назначения

Россия, Республика Марий Эл, Знаменское сельское поселение, посёлок Знаменский, Новая улица, 11а

12 208 000 ₽

70 000 ₽ за м²

174 м²
Площадь
1/5
Этаж

Поделиться

Добавить в избранное



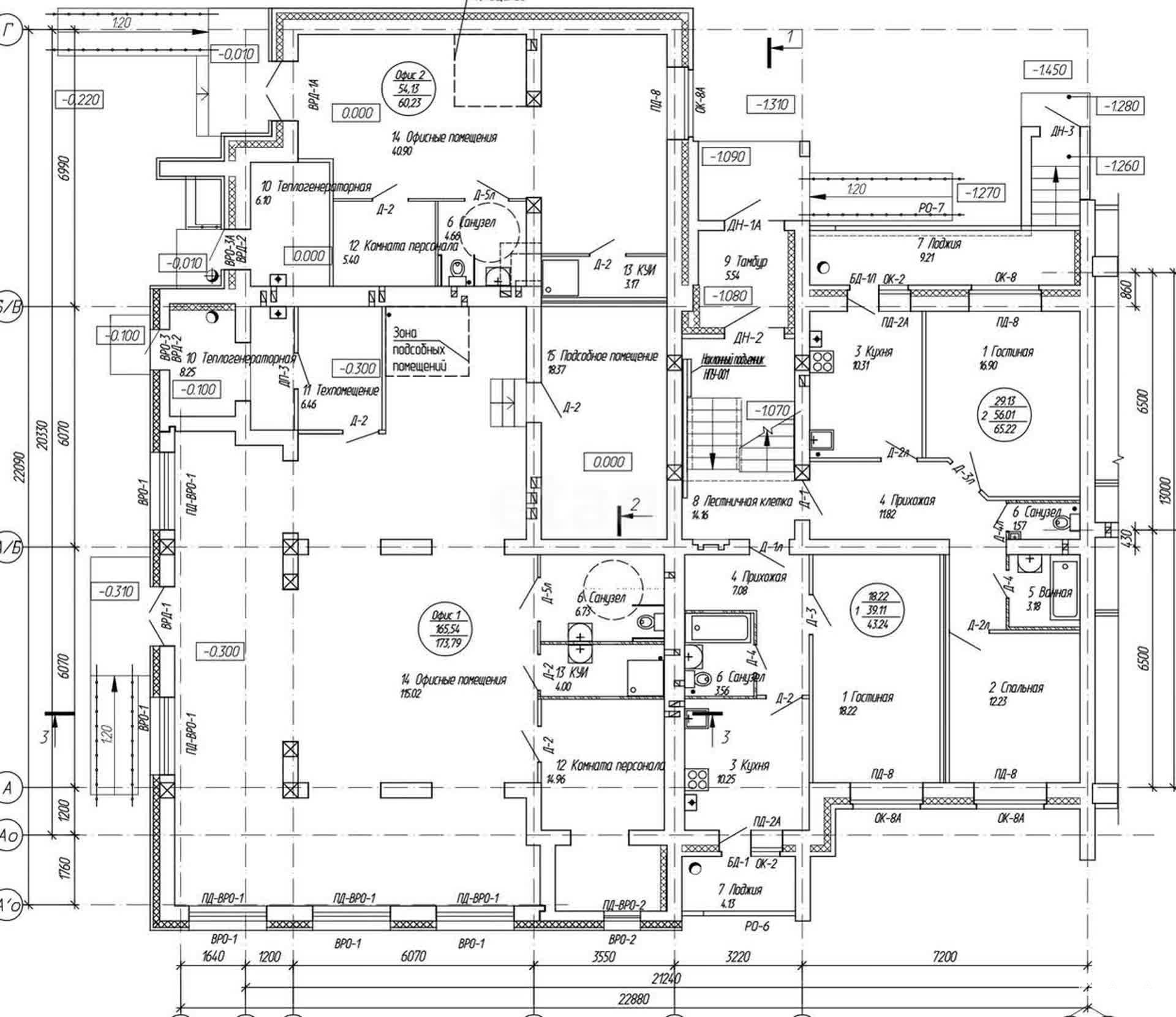
БЕЗ КОМИССИИ. В продаже коммерческое помещение площадью 174 кв.м на 1 этаже с отдельным входом в новом сданном доме жилого комплекса Зеленый квартал в поселке Знаменский.
Это новый перспективный район с развивающейся инфраструктурой и планами на застройку. Находится недалеко от с. Семеновка и коттеджного поселка Рябинка. В этом жилом комплексе планируется еще несколько жилых домов, рядом есть школа, в планах строительство детского сада.
В данном доме всего 2 коммерческих помещения.
Характеристики нежилого помещения №1:
- общая площадь 174, 4 кв.м
- высота полков 2, 7м
- отдельный вход
- газовое отопление (двухконтурный котел, горячая вода и отопление)
- автомобильная парковка
- черновая отделка
- установлена охранно-пожарная сигнализация
- собственный санузел, «мокрая точка»
- теплогенераторная
Возможное назначение: размещение торговых точек, предприятий сферы услуг, офисов.
Код пользователя: 1245793227
Номер в базе: 3363393

Дата обновления: 30 марта 2026